Signor Heritage
Fp 14/1, Opp. Micro Care, B/h Vivaan Elysium, Opp. Raghav Party Plot, 36 Mtr Road, Zundal, North West, Ahmedabad
₹5,099,99851.48 L - 69.13 L
Basics
- Date added: Added 1 year ago
Description
-
Description:
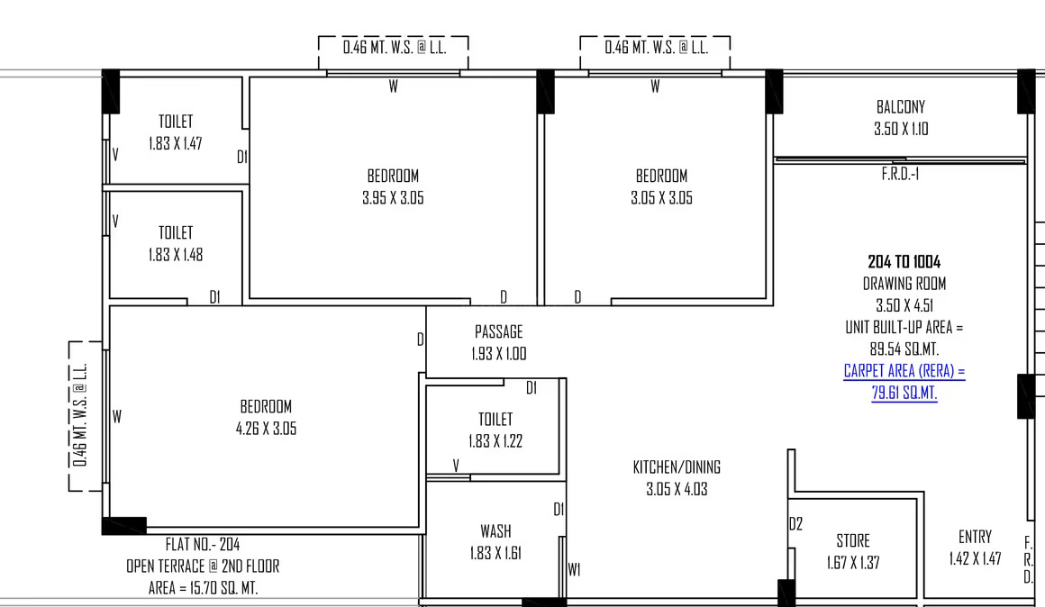
2, 3 BHK Apartment Configuration
Mar, 2028 Possession Starts
₹32.5 K/sq.ydAvg. Price156- 216sq.yd. (Super Builtup Area)
Why Signor Heritage?
Stand alone Club House.YOGA Deck on terrace.8 Lane Ahmedabad - Gandhinagar Highway connectivityDivine Child school 500 Mtr.CBD Mall 500 Mtr.Project Area Sizes Project Sizes .71 Acre 156- 216 sq.yd. 3 Buildings - 99 units Launch Date Avg. Price Possession Starts Jun, 2023 32.5 K/sq.yd Mar, 2028 Configuration Rera Id 2, 3 BHK Apartment PR/GJ/GANDHINAGAR/GA
Show all description
Amenities & Features
- Amenities:
- Features:
Powered by Estatik